Hôtel & VILLAS PRIVÉES MASLINA_5000 m²
Une élégante résidence au cœur d’un paradis insulaire
Aménagement intérieur et décoration complète de trois villas privées sur l’île de Hvar, dans le contexte de la commande d’un hôtel 5 étoiles sur cette même île en Croatie, un établissement de luxe composé de 52 chambres, SPA et communs au bord de l'Adriatique.

Sur l’île de Hvar, l’une des plus séduisantes îles dalmates, dans un vaste domaine qui s’étire le long des eaux cristallines de l’Adriatique, cet hôtel 5 étoiles et ces trois villas à l’esthétique contemporaine, blottis dans la pinède, ont été construits avec des matériaux naturels pour offrir une sensation de pleine communion avec la nature environnante. Ce lieu singulier se niche dans 30 000 m² de nature préservée pour une parenthèse de sérénité parmi la magnifique baie de Maslinica

Situé à Stari Grad, cité classée au patrimoine mondial de l’Unesco, ce vaste domaine en front de mer ou avec jardin et piscine privative, puise ses racines dans l’hôtellerie responsable et écologique, préservant l’environnement vierge et l’héritage culturel de l’île de Hvar. Leurs fondations bâties avec des matériaux durables s’étendent le long de la mer Adriatique, où des vignobles enchanteurs dialoguent avec des oliveraies charmeuses sous un ciel d’azur exalté.












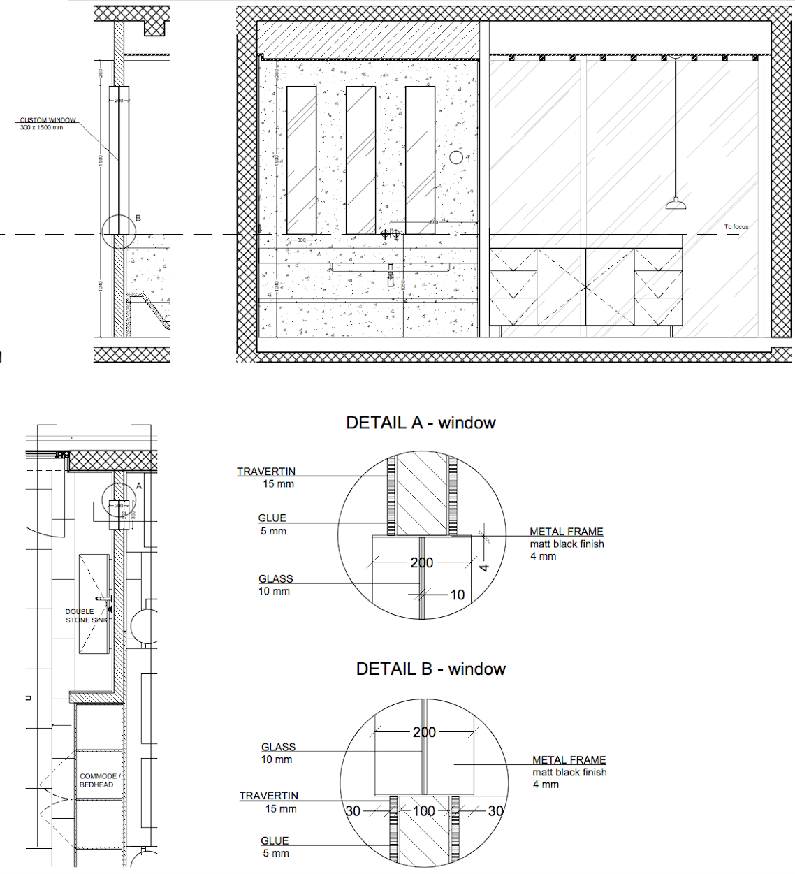
Hall d'accueil en pierre brute fissurée, fait sur mesure, rempli de tables en pierre de lave émaillée et en bronze, de lustres en albâtre italien et d'étoffes. Baldaquin en bambou de Déambulons, éclairage en terre cuite de Hand & Eye Studio, lits de jour de Charlotte Juillard.

Hôtel cinq étoiles holistique et familial situé sur une île de la mer Adriatique. Le dernier cri en matière d'équipements modernes pour les chambres, une cuisine locale gastronomique, une navette privée et une bibliothèque sélective. Le vent danse contre les rochers de Brač. Le jardin de l'Europe dans une coque de béton face à la mer et aux pins.


L’enjeu de ce projet est de parvenir à créer des espaces intérieurs qui soient luxueux sans être ostentatoires. La beauté et la richesse du site en sont les atouts principaux. Pour les accompagner, nous avons allié la douceur de vivre et le charme de l’ile de Hvar à une sélection éclectique de matériaux et de mobilier.
L’objectif a été de retrouver la variété de la nature dans ce qu’elle a de plus simple et sophistiqué à la fois;
- Travailler les pierres beiges de manière plus contemporaine : strier la pierre de Kanfanar pour créer des rayures, dessiner des opus incertum des marbres;
- Associer des matériaux ancestraux comme la brique en terre cuite à un plateau brutalisée en acier corten;
- Brûler des bois pour en faire ressortir le veinage;
- Créer des palettes de teintes naturelles avec des tons beiges, gris, bleu et verts selon les espaces;
- Mettre en valeur les vues vers le paysage et la mer;
- Privilégier les éclairages doux et indirects pour créer des atmosphères intimes synonymes de calme et d’élégance;
- Habiter les espaces avec dd mobilier massif en bois pensé comme des sculptures allié à de l’ultra-confort dans lequel on peut se vautrer;
- Contraster, toujours, un élément brut, fort, sombre ou graphique avec un détail raffiné
- Rythmer les espaces par des motifs intérieurs grâce à des écailles de laiton, des habillages de faïence murale, des calaminages de parquet, des associations de briques;
- Jouer avec les transparences et des claustras pour créer une variété de perspectives et de bulles d’intimité;
- Revisiter le vocabulaire de l’architecture maritimes par des oculus, des perforations;
- Sophistiquer grâce au cuir, au laiton, au verre soufflé, au velours;
Par ces choix, nous parvenons à créer un sentiment immédiat de bien-être chez le convive tout en stimulant sa curiosité dans un lieu haut-de-gamme original et en harmonie avec l’environnement naturel.

Idéalement situées au bord de l’eau, les trois villas amènent la mer Adriatique à votre porte. Désireux de prendre soin du territoire sur lequel il prend racine, elles se fondent parfaitement dans leur environnement naturel. En effet, leur architecture sont faites de matériaux nobles et naturels comme les pierres de Brač, la terracotta, ou encore le bois. A l’intérieur, de vastes espaces de vie, et à l’extérieur, des piscines à débordement chauffées et des jardins luxuriants.




Parmi elles, la Villa Uvala se développe sur une surface de 500m² et possède 5 chambres, des salles de bains avec douche à l’italienne et baignoire. Nous avons ensuite de vastes pièces de vie : un salon intérieur avec sa cheminée qui s’ouvre sur une salle à manger et une grande cuisine avec un coin bar.















Pour compléter le tout, cette villa comporte un espace de remise en forme privé avec une salle de fitness et un sauna finlandais. Son atout principal est son extérieur où l’on retrouve une piscine à débordement, un bain à remous et un coin repas. Le tout donnant sur une vue dégagée de la mer Adriatique.
























