CONSTRUCTION DE QUINZE LOGEMENTS SOCIAUX ET DE DEUX LOCAUX COMMERCIAUX

Lieu _ Surface _ Calendrier _ MOA _ Budget
Paris XIXème _ 1600 m² SdP _ DET _ Elogie SIEMP _ 2 100 000 euros HT
MISSIONS
- Reprise des documents graphiques du dossier marché
- Vérification et diffusion des dossiers d’agréments de sous-traitance
- Organisation, coordination et compte rendu des réunions de chantier
- VISA des plans d'exécution et Fiches Techniques
- Résolutions des contraintes techniques en cours de chantier par la réalisation de simulations et de nouveaux détails
- Analyse des devis de travaux supplémentaires
- Visa des situations financières de chantier
MISSIONS
- Reprise des documents graphiques du dossier marché
- Vérification et diffusion des dossiers d’agréments de sous-traitance
- Organisation, coordination et compte rendu des réunions de chantier
- VISA des plans d'exécution et Fiches Techniques
- Résolutions des contraintes techniques en cours de chantier par la réalisation de simulations et de nouveaux détails
- Analyse des devis de travaux supplémentaires
- Visa des situations financières de chantier

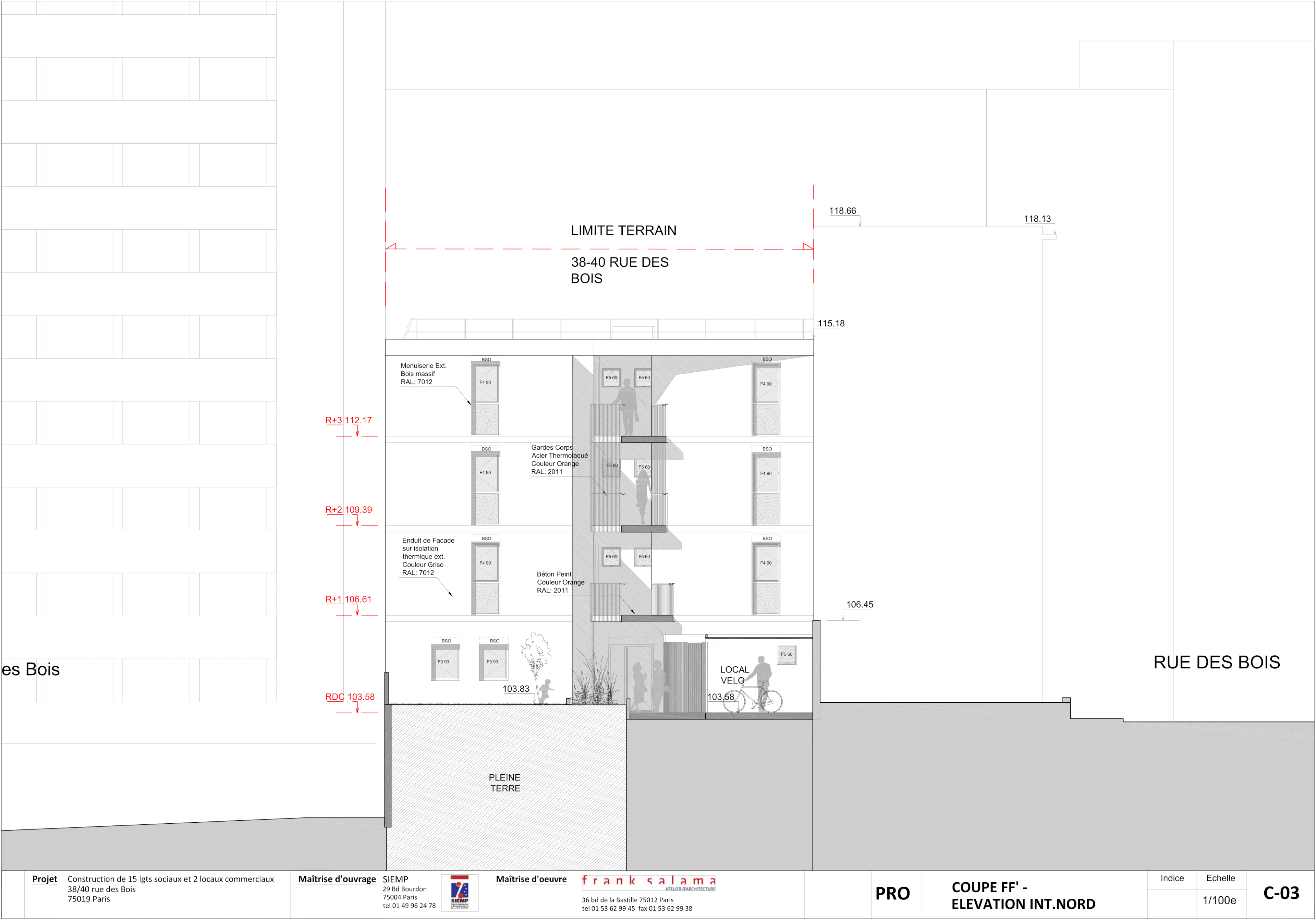
Le projet concerne la construction de deux corps de bâtiments reliés par une coursive extérieure, ils abritent 15 logements et 2 commerces. Les deux bâtiments ont une cage d’escalier commune et un ascenseur commun situé dans le bâtiment donnant sur la rue des Bois. Ce dernier débouche sur une circulation commune intérieure au rez-de-chaussée bas et sur des coursives à l’air libre à partir du rez-dechaussée haut. Un niveau du projet est partiellement enterré et comporte un local vélo, une chaufferie, des caves et un commerce qui donne sur la rue des Bois. Les éléments porteurs sont en béton armé et les cloisons principalement en maçonnerie. La distribution intérieure est essentiellement constituée d’ossature métallique avec parement en plaque de plâtres cartonnés avec une incorporation de laine de verre. La toiture est en acier avec caillebottis. La production de chaleur pour le chauffage est assurée par une chaudière à gaz de combustion. Il est prévu que l’eau chaude sanitaire soit assurée en partie par des panneaux solaires thermiques et que le plancher chauffant soit la production de chaleur de base dans tous les logements. Chacun des deux bâtiments est ventilé mécaniquement par un système de ventilation de type double flux à récupération de chaleur. Il y a des échangeurs de chaleurs collectifs pour limiter l’encombrement des faux plafonds dans les logements. Ces bâtiments sont classés en 3éme famille B.


Il m’a été confié de suivre le chantier de cette opération de logements collectifs, dont le commanditaire est un bailleur social de la ville de Paris, ce qui implique de vérifier les documents techniques en vue d’émettre les visas. Il s’agit principalement d’un exercice de gestion administrative où je doit établir des dossiers d’agréments, en vue de valider les demandes faites par l’entreprise. Dans cette optique, je me charge donc des réunions de chantier pour ensuite rédiger les comptes rendus, plus ou moins denses selon les contingences survenues.

Le chantier étant arrêté depuis plus de six mois, pour cause de dépôt de bilan de l’entreprise générale, il y a de nombreux points à éclaircir entre intervenants, dont la prise en charge de certains lots toujours délaissés. Afin d’optimiser le suivi de ces différents sujets et dans le même temps éviter une multiplication des échanges par mail, je rédige un compte rendu partagé, donc interactif, du suivi des études. Il se présente comme un compte rendu “classique” de l’opération mais propose une meilleure traçabilité des discussions en cours. Sa mise à jour de visite en visite se trouve facilité.








